Les plans détaillés

Les 3 corps de bâtiments communiquant se composent : 

RDC + 5 étages à usage de chambres, bureaux ou pièces d'activités diverses

Rez-de-chaussée

1er étage

2e étage

3e étage

4e étage

5e étage

Plans des bâtiments

Plan cadastral

Photos

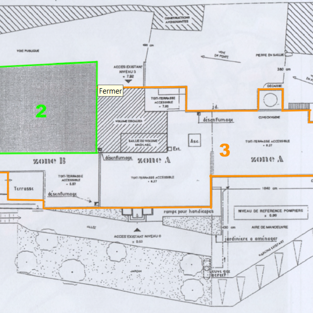
LES POSSIBILITES D'AMENAGEMENT DE LA TERRASSE

© Copyright. Tous droits réservés

Nous avons besoin de votre consentement pour charger les traductions

Nous utilisons un service tiers pour traduire le contenu du site web qui peut collecter des données sur votre activité. Veuillez consulter les détails dans la politique de confidentialité et accepter le service pour voir les traductions.